Với độ ngũ kiến trúc sư, kỹ sư kinh nghiệm nhiều năm thiết kế và lập bản vẽ xin phép xây dựng phường Thanh Trì Quận Hoàng Mai. Hiểu rõ và nắm vững các quy định về thiết kế kiến trúc, mật độ xây dựng ....trong khu đô thị hiện hữu phường Thanh Trì Quận Hoàng Mai Tp. Hà Nội.
Chúng tôi sẽ giúp bạn có một bản vẽ xin phép xây dựng theo đúng Quy hoạch của phường Thanh Trì Quận Hoàng Mai và tận dụng tối đa diện tích, số tầng xây dựng. Chúng tôi cũng sẽ tư vấn cho bạn hiểu rõ những phần được phép xây dựng hay sửa chữa mà không vi phạm quy chế xây dựng.
Chúng tôi sẽ giúp các bạn thực hiện những điều đó! Hãy nhấc máy lên và gọi Liên hệ khi cần tư vấn: hotline: 0981244588 / 0568001987 để được chúng tôi tư vấn hoàn toàn miễn phí!
DỰ ÁN TIÊU BIỂU THIẾT KẾ - XIN CẤP PHÉP XÂY DỰNG PHƯỜNG THANH TRÌ
QUẬN HOÀNG MAI
- Chủ đầu tư: Ông Nguyễn Công Trường và Bà Phạm Thị Kim Hạnh
- Địa điểm CPXD: Phường Thanh Trì - Quận Hoàng Mai - Thành phố Hà Nội
- Cơ quan CPXD: UBND Quận Hoàng Mai - Thành phố Hà Nội
- Đơn vị thiết kế: Công ty tư vấn xây dựng Vân Thanh
- Chủ đầu tư: Ông Nguyễn Anh Đạo và Bà Nguyễn Thị Thu Hằng
- Địa điểm CPXD: Phường Thanh Trì - Quận Hoàng Mai - Thành phố Hà Nội
- Cơ quan CPXD: UBND Quận Hoàng Mai - Thành phố Hà Nội
- Đơn vị thiết kế: Công ty tư vấn xây dựng Vân Thanh
- Chủ đầu tư: Ông Trần Văn Thủy và Nguyễn Thị Chung
- Địa điểm CPXD: Phường Thanh Trì - Quận Hoàng Mai - Thành phố Hà Nội
- Cơ quan CPXD: UBND Quận Hoàng Mai - Thành phố Hà Nội
- Đơn vị thiết kế: Công ty tư vấn xây dựng Vân Thanh

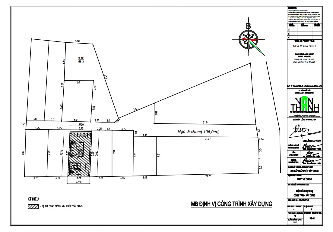
- Chủ đầu tư: Ông Lê Văn Trung và Bà Vũ Thị Thu Trang
- Địa điểm CPXD: Phường Thanh Trì - Quận Hoàng Mai - Thành phố Hà Nội
- Cơ quan CPXD: UBND Quận Hoàng Mai - Thành phố Hà Nội
- Đơn vị thiết kế: Công ty tư vấn xây dựng Vân Thanh
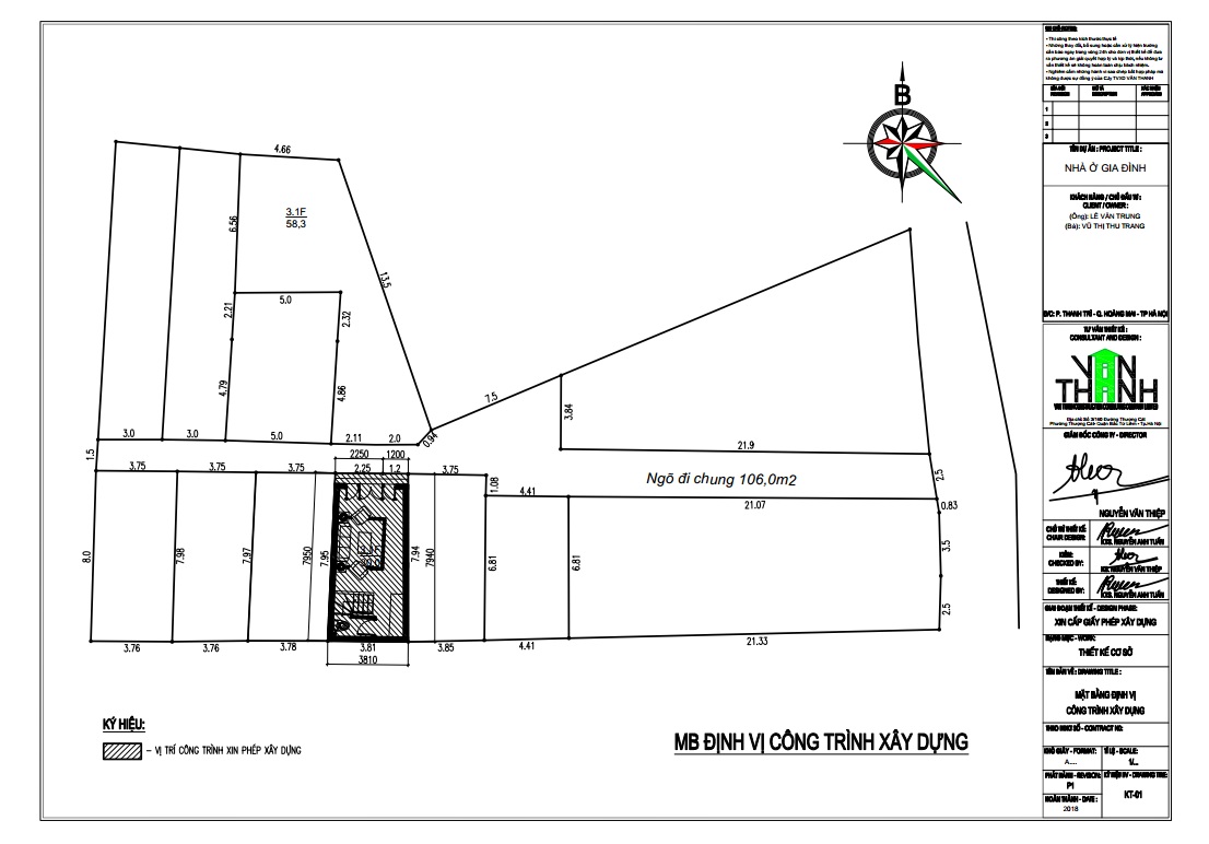
- Chủ đầu tư: Ông Lê Văn Trung và Bà Vũ Thị Thu Trang
- Địa điểm CPXD: Phường Thanh Trì - Quận Hoàng Mai - Thành phố Hà Nội
- Cơ quan CPXD: UBND Quận Hoàng Mai - Thành phố Hà Nội
- Đơn vị thiết kế: Công ty tư vấn xây dựng Vân Thanh
- Chủ đầu tư: Ông Phùng Quang Long
- Địa điểm CPXD: Phường Thanh Trì - Quận Hoàng Mai - Thành phố Hà Nội
- Cơ quan CPXD: UBND Quận Hoàng Mai - Thành phố Hà Nội
- Đơn vị thiết kế: Công ty tư vấn xây dựng Vân Thanh
Nhận xét & Thảo luận