Với đội ngũ kiến trúc sư, kỹ sư dày dặn kinh nghiệm nhiều năm thiết kế và lập hồ sơ trọn bộ xin cấp phép xây dựng nhà ở riêng lẻ. Hiểu rõ được các quy định của pháp luật về thiết kế kiến trúc, quy hoạch, lộ giới, chỉ giới đường đỏ, mật độ xây dựng .....của các tỉnh thành phố trên cả nước nói chung và xin cấp giấy phép xây dựng phường Đức Thắng Quận Bắc Từ Liêm Hà Nội nói riêng. Chúng tôi sẽ giúp các bạn tận dụng tối đa diện tích xây dựng và số tầng xây dựng để phù hợp với quy định của pháp luật và sẽ Tư vấn miễn phí cho các bạn hiểu rõ những phần được phép xây dựng hay sửa chữa mà không vi phạm quy định của pháp luật về xây dựng.
- Công ty tư vấn xây dựng Vân Thanh sẽ giúp bạn có 1 bộ hồ sơ xin cấp phép xây dựng nhà ở riêng lẻ, nhà lô, nhà phố, biệt thự đầy đủ nhất, phù hợp với mong muốn của bạn xây dựng của bạn và đúng với quy hoạch, mật độ...... của địa điểm bạn muốn xây dựng.
DỰ ÁN TIÊU BIỂU THIẾT KẾ - XIN CẤP PHÉP XÂY DỰNG PHƯỜNG ĐỨC THẮNG
QUẬN BẮC TỪ LIÊM

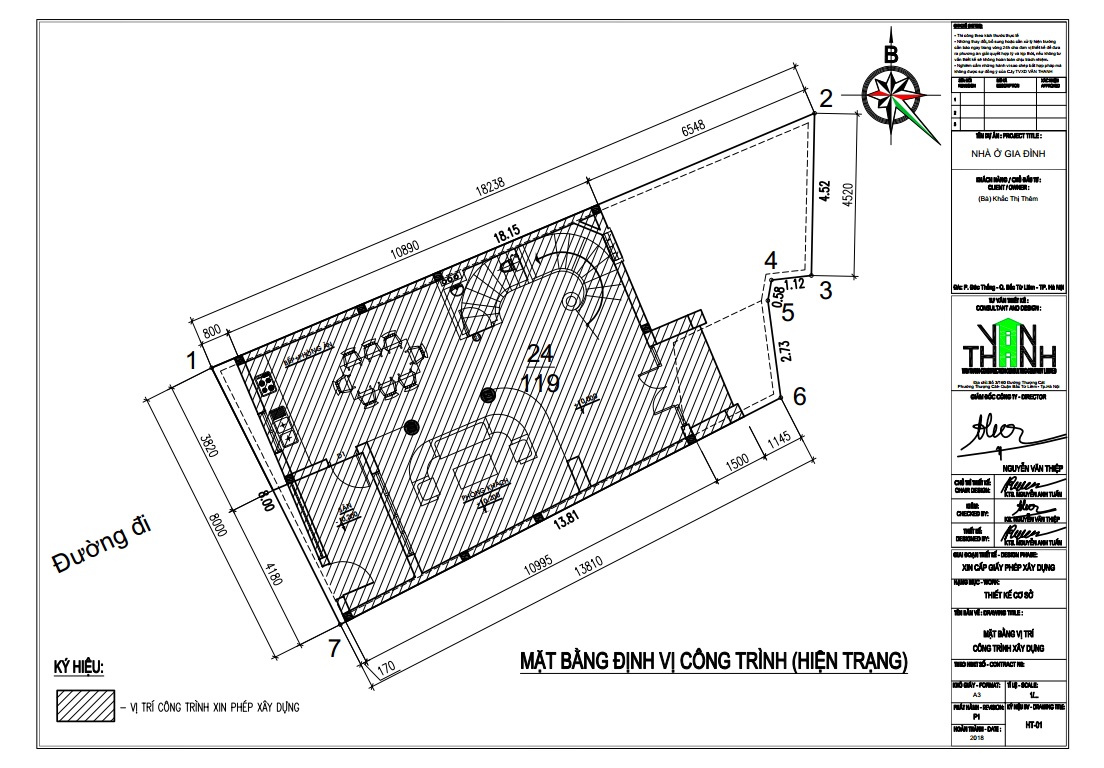
- Chủ đầu tư: Bà Khắc Thị Thêm
- Đơn vị tư vấn thiết kế: Công ty tư vấn xây dựng Vân Thanh
- Địa điểm CPXD: Phường Đức Thắng - Quận Bắc Từ Liêm - Thành phố Hà Nội
- Cơ quan CPXD: UBND Quận Bắc Từ Liêm - Thành phố Hà Nội
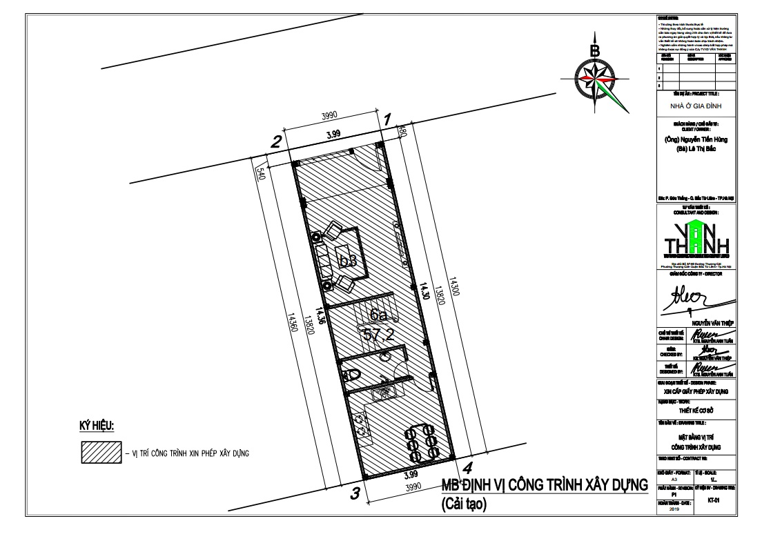
- Chủ đầu tư: Ông Nguyễn Tiến Hùng và Bà Lê Thị Bắc
- Đơn vị tư vấn thiết kế: Công ty tư vấn xây dựng Vân Thanh
- Địa điểm CPXD: Phường Đức Thắng - Quận Bắc Từ Liêm - Thành phố Hà Nội
- Cơ quan CPXD: Phòng QLDT Quận Bắc Từ Liêm - Thành phố Hà Nội
- Chủ đầu tư: Ông Nguyễn Khánh Hiển
- Đơn vị tư vấn thiết kế: Công ty tư vấn xây dựng Vân Thanh
- Địa điểm CPXD: Phường Đức Thắng - Quận Bắc Từ Liêm - Thành phố Hà Nội
- Cơ quan CPXD: Phòng QLDT Quận Bắc Từ Liêm - Thành phố Hà Nội
- Với những tỉnh, thành phố như thành phố Hà Nội đang triển khai dịch vụ công mức độ 3, chúng tôi sẽ Scan hồ sơ rồi nộp hồ sơ xin cấp phép xây dựng trực tuyến đến các cơ quan chức năng lấy giấy hẹn chờ kết quả. Bước tiếp theo cán bộ quản lý đô thị thụ lý hồ sơ sẽ về kiểm tra thực tế tại địa điểm và ra quyết định điều chỉnh bản vẽ (nếu có). Và cuối cùng đến hẹn trả kết quả bạn sẽ mang hồ sơ xin cấp phép xây dựng trọn bộ chúng tôi gửi cho bạn bằng đường chuyển phát nhanh để bạn đến cơ quan chức năng nộp lại và nhận lại giấy phép xây dựng của bạn.
- Với những tỉnh, thành phố chưa triển khai dịch vụ công mức độ 3 thì chúng tôi cũng hoàn thiện hồ sơ trọn bộ xin cấp phép xây dựng rồi gửi cho bạn theo đường bưu điện, Bạn nhận và nộp lại cơ quan chức năng lấy giấy hẹn và chờ kết quả là xong.
- Nếu các bạn là người bận rộn ko có thời gian, chúng tôi sẽ thay các bạn làm việc với các cơ quan chức năng để xin cấp giấy phép xây dựng trọn gói giúp các bạn.
+ Bạn đang dự định xây dựng nhà ở riêng lẻ, văn phòng, chung cư mini, nhà xưởng....mà chưa biết bắt đầu tư đâu?
+ Bạn không nắm rõ các quy định của pháp luật về lĩnh vực xây dựng nói chung và quy định cấp phép xây dựng nói riêng!
+ Bạn cũng không phải là người có chuyên môn hoặc không đủ năng lực trong lĩnh vực xây dựng theo yêu cầu về việc xin cấp phép xây dựng!
Chúng tôi sẽ giúp các bạn thực hiện những điều đó! Hãy nhấc máy lên và gọi hotline: 0981244588; 0568001987 để được chúng tôi tư vấn hoàn toàn miễn phí!
Nhận xét & Thảo luận