Người ta căn cứ vào sự chuyển động của không khí để phân loại.Thường có
hai loại: thông gió tự nhiên và thông gió cưỡng bức.
1. Thông gió tự nhiên.
Sự chuyển động của không khí từ trong nhà ra ngoài nhà (hay ngược lại) là
do chênh lệch nhiệt độ bên trong ra bên ngoài nhà(hay ngược lại) là do chênh lệch
nhiệt độ bên trong và bên ngoài. Từ chỗ chênh lệch nhiệt độ dẫn tới chênh lệch áp
suất và làm cho không khí chuyển động.
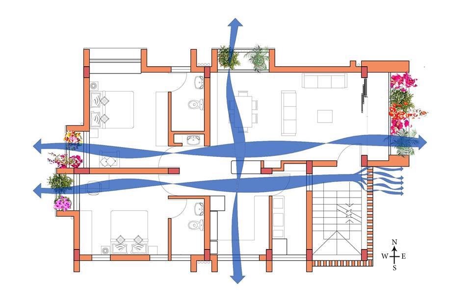
a, Hiện tượng gió lùa: Không khí vào nhà và ra khỏi nhà qua các khe hở của cửa
và qua các lỗ trên tường khi có gió thổi được gọi là gió lùa. Hiện tượng gió lùa đều
không khống chế được lưu lượng, không điều chỉnh được vận tốc gió và hướng
gió…nên còn được gọi là thông gió tự nhiên vô tổ chức.
b, Thông gió tự nhiên có tổ chức: Xác định được diện tích của gió vào, diện tích
gió ra – xác định được lưu lượng thông gió cho phòng -> điều chỉnh được vận tốc
hướng gió đó là hiện tượng thông gió tự nhiên có tổ chức. Thông gió tự nhiên có tổ
chức có ý nghĩa rất lớn về mặt kinh tế vì không tốn kém thiết bị, không tốn điện
năng nhưng vẫn giải quyết tốt vấn đề thông gió. Vì vậy, ở Việt Nam được áp dụng
rất nhiều đặc biệt là trong các phân xưởng nóng có nhiệt thừa và trong các nhà công
nghiệp một tầng.
c, Thông gió trọng lực: là hệ thống thông gió tự nhiên dưới sức đẩy của trọng lực
hay còn gọi là thông gió cột áp là thông gió tự nhiên bằng mương dẫn được áp dụng
trong các nhà dân dụng và công cộng. Không khí chuyển động trong mương dẫn do
chênh lệch áp suất của cột không khí bên trong và bên ngoài nhà. Thường dùng để
thông gió ở các ống khói của các nhà ở gia đình. 2, Thông gió cưỡng bức.(thông gió cơ khí):
Là hệ thống thông gió hoạt động để đưa không khí từ trong phòng ra ngoài
(hay ngược lại) nhờ tác động của máy quạ và động cơ. Thường có hai loại:
a, Hút cơ khí: Hút không khí bị ô nhiễm, hút nhiệt, hút bụi từ các nguồn phát
sinh để đưa ra khỏi phòng để đảm bảo điều kiện vệ sinh cho môi trường gọi là hút
cơ khí. Lúc đó
VR
I
ε = < 1 (2-1)
b, Thổi cơ khí: thổi không khí trong sạch vào nhà tại các vị trí cần thiết và biết
trước để tăng cường hiệu quả làm mát cho người công nhân. Lúc đó
VR
I
ε = >1 (2-2)
Với L
v, LR (m3/h): là lưu lượng không khí vào, ra khỏi phòng.
27
c, Hệ thống điều hoà không khí: Trong hệ thống thông gió cơ khí có đầy đủ các
thiết bị để xử lý không khí đảm bảo yêu cầu của con người và yêu cầu công nghệ
gọi là hệ thống điều hoà không khí. Các thiết bị đó bao gồm: thiết bị lọc bụi, thiết bị
sấy nóng, làm lạnh, làm ẩm không khí…
Từ khóa: Chứng chỉ năng lực hoạt động xây dựng công ty tư vấn xây dựng vân thanh; Quy trình trình tự quản lý chất lượng thi công xây dựng; Quy định về chỉ dẫn kỹ thuật; Giám sát quản lý tiến độ dự án đầu tư xây dựng công trình; tư vấn giám sát xd; Điều kiện để khởi công xây dựng công trình; Danh mục hồ sơ pháp lý; Hồ sơ chất lượng công trình xây dựng; Hồ sơ nghiệm thu bao gồm?; Giám sát chất lượng bê tông cốt thép; dịch vụ xin cấp phép xây dựng tại hà nội; dịch vụ cung cấp hồ sơ xin cấp phép xây dựng tại quận bắc từ liêm; Dịch vụ xin cấp phép xây dựng tại quận nam từ liêm; dịch vụ hồ sơ xin cấp giấy phép xây dựng trực tuyến; hồ sơ xin cấp phép xây dựng gồm những gì? ; dịch vụ hồ sơ xin cấp giấy phép xây dựng trực tuyến; xin cấp giấy phép xây dựng ở đâu? ; xin cấp giấy phép xây dựng thượng cát bắc từ liêm,; xây nhà trọn gói (tổng thầu epc); thiết kế kết cấu công trình ; dịch vụ thiết kế kết cấu xây dựng trực tuyến; tư vấn giám sát xây dựng công trình ; thiết kế nhà hợp phong thủy ; thiết kế và thi công nội thất đẹp chuyên nghiệp ; thiết kế kiến trúc và lên phương án mô hình 3D ; xin cấp giấy phép xây dựng phúc diễn bắc từ liêm hà nội ; xin cấp giấy phép xây dựng quận đống đa hà nội ; xin cấp giấy phép xây dựng quận hoàng mai hà nội ; xin cấp giấy phép xây dựng phường đức thắng quận bắc từ liêm ; xin phép xây dựng phường phú diến quận bắc từ liêm; Dịch vụ xin phép xây dựng phường cổ nhuế 1 quận bắc từ liêm; Dịch vụ xin phép xây dựng phường xuân tảo quận bắc từ liêm; Dịch vụ xin phép xây dựng phường xuân đỉnh quận bắc từ liêm; Dịch vụ xin phép xây dựng phường đông ngạc quận bắc từ liêm; Dịch vụ xin phép xây dựng phường minh khai quận bắc từ liêm; Dịch vụ xin phép xây dựng phường tây tựu quận bắc từ liêm; Dịch vụ xin phép xây dựng phường thụy phương quận bắc từ liêm; Dịch vụ xin phép xây dựng phường cổ nhuế 2 quận bắc từ liêm; Dịch vụ xin phép xây dựng phường liên mạc quận bắc từ liêm; xin phép xây dựng quận long biên hà nội ; dịch vụ xin phép xây dựng quận cầu giấy hà nội ; Dịch vụ xin giấy phép xây dựng nhà ở quận hai bà trưng hà nội; dịch vụ xin cấp phép xây dựng nhà ở quận tây hồ hà nội ; dịch vụ xin giấy phép xây dựng nhà ở quận ba đình hà nội ; dịch vụ sang tên sổ đỏ quận bắc từ liêm ; thiết kế kiến trúc nhà ở gia đình; thiết kế kết cấu / xin giấy phép xây dựng quận hà đông hà nội; dịch vụ xin phép xây dựng nhà ở quận thanh xuân hà nội; dịch vụ xin giấy phép xây dựng huyện thanh trì hà nội; dịch vụ xin phép xây dựng quận hoàn kiếm hà nội; dịch vụ xin phép xây dựng hoài đức hà nội; dịch vụ xin phép xây dựng huyện đan phượng hà nội; dịch vụ xin phép xây dựng huyện đông anh hà nội; Dịch vụ xin phép xây dựng huyện gia lâm hà nội; tư vấn quản lý dự án; tư vấn giám sát xây dựng công trình nhà ở riêng lẻ; Trách nhiệm của tư vấn giám sát trong quản lý chất lượng công trình; Trách nhiệm của nhà thầu thi công trong quản lý chất lượng công trình; Thẩm tra thiết kê thẩm tra dự toán;



Nhận xét & Thảo luận