Bể phốt thường được xây ở dưới đất, bên trong công trình hay bên ngoài
(nếu có khoảng trống)
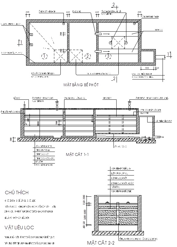
Bể phốt thường được thiết kế hai loại : bể phốt có ngăn lọc (bể phốt tự hoại) và bể phốt không có ngăn lọc (bể phốt bán tự hoại).
b. Yêu cầu khi thiết kế bể
Bể phốt được đặt sâu bằng hoặc nông hơn đáy móng (không nên làm sâu hơn đáy móng vì sẽ làm yếu móng và dễ bị nứt do áp lực của móng)
Đáy bể phốt thường làm riêng và tách rời với đáy móng và tường móng (trừ trường hợp móng bè thì có thể sử dung ngay đế móng bè làm đáy bể phốt, nhưng tường bể phải xây riêng không được chung với tường móng)
c. Cấu tạo bể
Bể phốt thường chia làm ba ngăn (bể tự hoại): ngăn chứa, ngăn lắng, ngăn lọc và một hố ga
Đáy bể phốt cấu tạo bằng bê tông cốt thép mác 200 dầy ít nhất là 100mm
Tường bể phải xây gạch đặc mác 75, vữa xi măng cát mác 50, trát trong bằng
vữa xi măng cát vàng mác 75 dày 25 trát làm hai lớp ( lớp đầu dày 15mm,
lớp sau dày 10mm), đánh màu bằng xi măng nguyên chất.
Nắp bể thường được đúc bằng tấm đan bê tông cốt thép lắp ghép dầy 50mm, có để cửa hút bùn khi bể đầy.
Từ khóa: Chứng chỉ năng lực hoạt động xây dựng công ty tư vấn xây dựng vân thanh; Quy trình trình tự quản lý chất lượng thi công xây dựng; Quy định về chỉ dẫn kỹ thuật; Giám sát quản lý tiến độ dự án đầu tư xây dựng công trình; tư vấn giám sát xd; Điều kiện để khởi công xây dựng công trình; Danh mục hồ sơ pháp lý; Hồ sơ chất lượng công trình xây dựng; Hồ sơ nghiệm thu bao gồm?; Giám sát chất lượng bê tông cốt thép; dịch vụ xin cấp phép xây dựng tại hà nội; dịch vụ cung cấp hồ sơ xin cấp phép xây dựng tại quận bắc từ liêm; Dịch vụ xin cấp phép xây dựng tại quận nam từ liêm; dịch vụ hồ sơ xin cấp giấy phép xây dựng trực tuyến; hồ sơ xin cấp phép xây dựng gồm những gì? ; dịch vụ hồ sơ xin cấp giấy phép xây dựng trực tuyến; xin cấp giấy phép xây dựng ở đâu? ; xin cấp giấy phép xây dựng thượng cát bắc từ liêm,; xây nhà trọn gói (tổng thầu epc); thiết kế kết cấu công trình ; dịch vụ thiết kế kết cấu xây dựng trực tuyến; tư vấn giám sát xây dựng công trình ; thiết kế nhà hợp phong thủy ; thiết kế và thi công nội thất đẹp chuyên nghiệp ; thiết kế kiến trúc và lên phương án mô hình 3D ; xin cấp giấy phép xây dựng phúc diễn bắc từ liêm hà nội ; xin cấp giấy phép xây dựng quận đống đa hà nội ; xin cấp giấy phép xây dựng quận hoàng mai hà nội ; xin cấp giấy phép xây dựng phường đức thắng quận bắc từ liêm ; xin phép xây dựng phường phú diến quận bắc từ liêm; Dịch vụ xin phép xây dựng phường cổ nhuế 1 quận bắc từ liêm; Dịch vụ xin phép xây dựng phường xuân tảo quận bắc từ liêm; Dịch vụ xin phép xây dựng phường xuân đỉnh quận bắc từ liêm; Dịch vụ xin phép xây dựng phường đông ngạc quận bắc từ liêm; Dịch vụ xin phép xây dựng phường minh khai quận bắc từ liêm; Dịch vụ xin phép xây dựng phường tây tựu quận bắc từ liêm; Dịch vụ xin phép xây dựng phường thụy phương quận bắc từ liêm; Dịch vụ xin phép xây dựng phường cổ nhuế 2 quận bắc từ liêm; Dịch vụ xin phép xây dựng phường liên mạc quận bắc từ liêm; xin phép xây dựng quận long biên hà nội ; dịch vụ xin phép xây dựng quận cầu giấy hà nội ; Dịch vụ xin giấy phép xây dựng nhà ở quận hai bà trưng hà nội; dịch vụ xin cấp phép xây dựng nhà ở quận tây hồ hà nội ; dịch vụ xin giấy phép xây dựng nhà ở quận ba đình hà nội ; dịch vụ sang tên sổ đỏ quận bắc từ liêm ; thiết kế kiến trúc nhà ở gia đình; thiết kế kết cấu / xin giấy phép xây dựng quận hà đông hà nội; dịch vụ xin phép xây dựng nhà ở quận thanh xuân hà nội; dịch vụ xin giấy phép xây dựng huyện thanh trì hà nội; dịch vụ xin phép xây dựng quận hoàn kiếm hà nội; dịch vụ xin phép xây dựng hoài đức hà nội; dịch vụ xin phép xây dựng huyện đan phượng hà nội; dịch vụ xin phép xây dựng huyện đông anh hà nội; Dịch vụ xin phép xây dựng huyện gia lâm hà nội; tư vấn quản lý dự án; tư vấn giám sát xây dựng công trình nhà ở riêng lẻ; Trách nhiệm của tư vấn giám sát trong quản lý chất lượng công trình; Trách nhiệm của nhà thầu thi công trong quản lý chất lượng công trình; Thẩm tra thiết kê thẩm tra dự toán;





Nhận xét & Thảo luận